169 vizualizari
Imprima
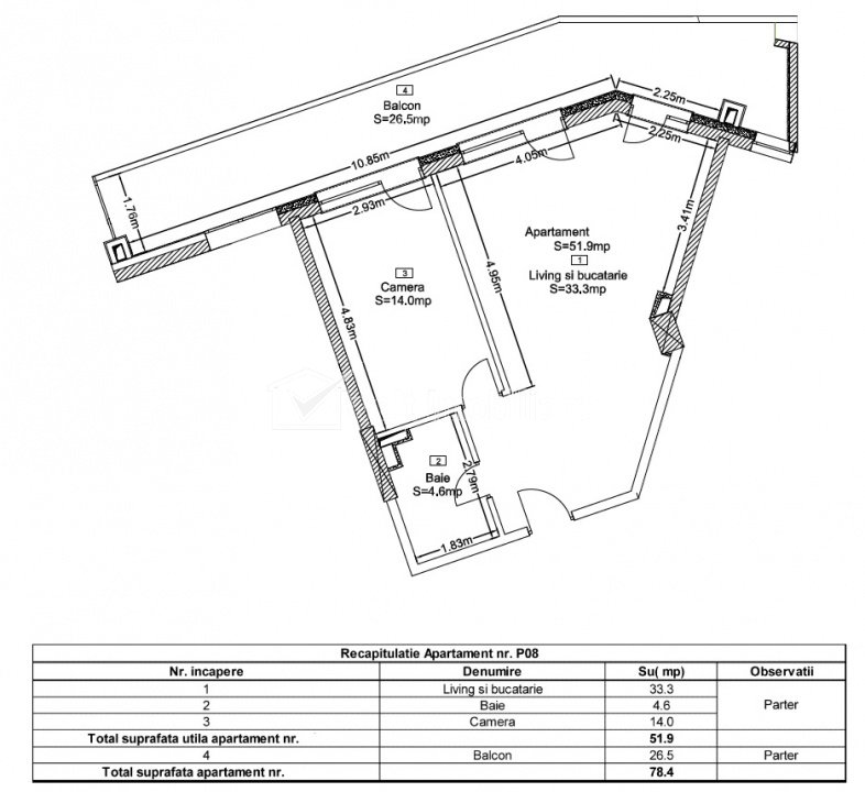
Apartament 2cam 52mp, parter, semifinisat, bloc WINGS
Oferim spre vânzare un apartament modern situat în ansamblul rezidențial Wings, cartier Zorilor, Cluj-Napoca.
Apartament 2 camere 52mp, living si bucatarie open space, dormitor cu iesire pe terasa, baie spațioasă, centrală pe gaz și încălzire în pardoseala, terasă, orientare Est. .
SEMIFINISAT
Intabulat cu carte funciară – disponibil imediat, se poate accesa credit ipotecar
Posibilitate achiziție loc de parcare: 12.000 EUR
Apartament 2 camere 52mp, living si bucatarie open space, dormitor cu iesire pe terasa, baie spațioasă, centrală pe gaz și încălzire în pardoseala, terasă, orientare Est. .
SEMIFINISAT
Intabulat cu carte funciară – disponibil imediat, se poate accesa credit ipotecar
Posibilitate achiziție loc de parcare: 12.000 EUR
https://www.weltimobiliare.ro/vanzare-apartament-2-camere-cluj-napoca-zorilor-id-78533.html
Detalii anunt
-
Pers. fizica sau agentieAgentie
-
camere2
-
suprafata52 mp
-
compartimentareSemidecomandat
-
etajParter
-
bai1
-
balcoane1
-
strada-
-
parcarenu
-
gresienu
-
centrala termicanu
-
parchetnu
-
faiantanu
-
termopannu