img 16.12.2025 12:42

Teren in curs de autorizare in Faget

Imagine
Imagine
Imagine
Imagine
Imagine
Imagine
Imagine
Imagine
Imagine
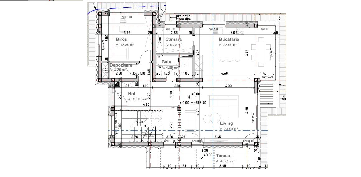
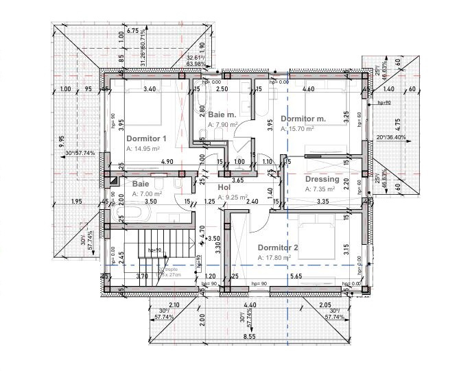
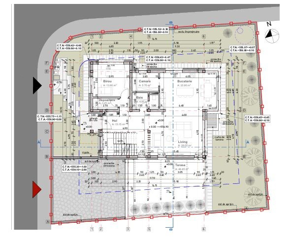
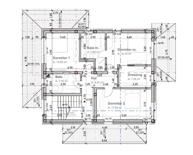
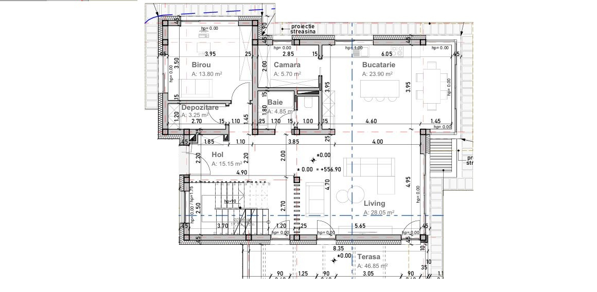
Koncept Imobiliare va ofera spre vanzare un teren intravilan situat in cartierul Faget, zona hotel Stil, intr-o arie rezidentiala apreciata pentru liniste, aer curat si proximitatea padurii. Parcela este retrasa de la strada principala, intr-un context urban aerisit, cu locuinte individuale noi si vecinatati exclusiv rezidentiale. Terenul are suprafata de 458 mp cu front de 21 m, forma regulata, panta foarte mica si beneficiaza de soare pe intreaga durata a zilei. Din punct de vedere urbanistic, parcela dispune de PUZ aprobat si este in curs de autorizare pentru constructia unei case individuale. Regimuri permis este: (S)+P+1+M, (S)+P+1+R, D+P+M sau D+P+R. Proiectul disponibil, in acest stadiu poate fi personalizat in functie de preferintele viitorului proprietar. Utilitatile includ canalizare trasa pana la limita proprietatii, iar apa, gazul si curentul electric se afla la aproximativ 30–40 metri. Accesul este facil, iar nivelul de zgomot este foarte redus, fara trafic intens sau activitati comerciale in proximitate. Printre punctele forte se remarca pozitionarea intr-una dintre cele mai cautate zone de case din Faget, cadrul natural oferit de apropierea padurii, accesul privat, documentatia urbanistica clara si pretul foarte competitiv raportat la piata zonei. Pentru informatii complete, programarea unei vizionari sau pentru a afla oferta noastra completa va stam la dispozitie telefonic, prin e-mail sau la sediul agentiei noastre, pe str. Aviator Badescu, nr. 19, Cluj-Napoca.

Detalii anunt

  • strada
    -
  • carte funciara
    nu
  • curent
    nu
  • certificat urbanism
    nu
  • apa
    nu
  • canalizare
    nu
  • gaz
    nu