112 vizualizari
Imprima
Teren de vanzare in Cluj-Napoca, Dambul Rotund ID 6801
Oferim spre vanzare teren intravilan in suprafata de 405 mp cu autorizatie de constructie casa individuala, situat in Cluj-Napoca, in cartierul Dambul Rotund, fiind un cartier nou-dezvoltat; in zona strazii Lombului.
Pozitionarea ofera o priveliste frumoasa asupra zonei, dar si asupra orasului.
Locatia este ideala pentru familii deoarece este o zona rezidentiala de case si vile, in care linistea si privelistea isi pun amprenta.
Terenul este autorizat pentru construire de casa individuala P+E
Teren autorizat pentru construire casa cu o desfasurare si compartimentare:
PARTER:- 1 living 18,99 mp
- 1 bucatarie cu zona de luat masa 30,93 mp
- 1 hol 7,72 mp
- 1 baie 5,7 mp
- 1 zona acces trepte etaj 3,53 mp
- 1 terasa generoasa acoperita 21,90 mp
- CT 12,94 mp
- 1 garaj 24,38 mp
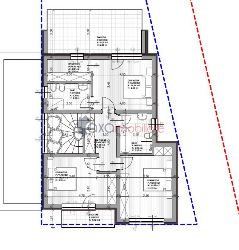
ETAJ:- 1 dormitor 14,25 mp + 1 balcon 4,32 mp
- 1 dormitor 16,85 mp
- 1 dormitor matrimonial 14,32 mp ( acesta detine baie proprie 5,4 mp , dressing 4,6 mp, balcon 19,50 mp )
- 1 hol 7,54 mp
- 1 baie 6,03 mp (care deserveste 2 dormitoare )
- 1 zona acces trepte 3,53 mp
Terenul dispune de toate utilitatile:
-apa
-canalizare
-gaze naturale
-electricitate
-drum asfaltat
-iluminat stradal
-salubritate
Pozitionarea ofera o priveliste frumoasa asupra zonei, dar si asupra orasului.
Locatia este ideala pentru familii deoarece este o zona rezidentiala de case si vile, in care linistea si privelistea isi pun amprenta.
Terenul este autorizat pentru construire de casa individuala P+E
Teren autorizat pentru construire casa cu o desfasurare si compartimentare:
PARTER:- 1 living 18,99 mp
- 1 bucatarie cu zona de luat masa 30,93 mp
- 1 hol 7,72 mp
- 1 baie 5,7 mp
- 1 zona acces trepte etaj 3,53 mp
- 1 terasa generoasa acoperita 21,90 mp
- CT 12,94 mp
- 1 garaj 24,38 mp
ETAJ:- 1 dormitor 14,25 mp + 1 balcon 4,32 mp
- 1 dormitor 16,85 mp
- 1 dormitor matrimonial 14,32 mp ( acesta detine baie proprie 5,4 mp , dressing 4,6 mp, balcon 19,50 mp )
- 1 hol 7,54 mp
- 1 baie 6,03 mp (care deserveste 2 dormitoare )
- 1 zona acces trepte 3,53 mp
Terenul dispune de toate utilitatile:
-apa
-canalizare
-gaze naturale
-electricitate
-drum asfaltat
-iluminat stradal
-salubritate
http://www.axaimobiliarecluj.ro/vanzare-teren-cluj_napoca-dambul-rotund-id-6801.html
Detalii anunt
-
strada-
-
carte funciaranu
-
curentnu
-
certificat urbanismnu
-
apanu
-
canalizarenu
-
gaznu