img 14.04.2026 12:41

Teren duplex, cu PUZ aprobat in Buna Ziua

Imagine
Imagine
Imagine
Imagine
Imagine
Imagine
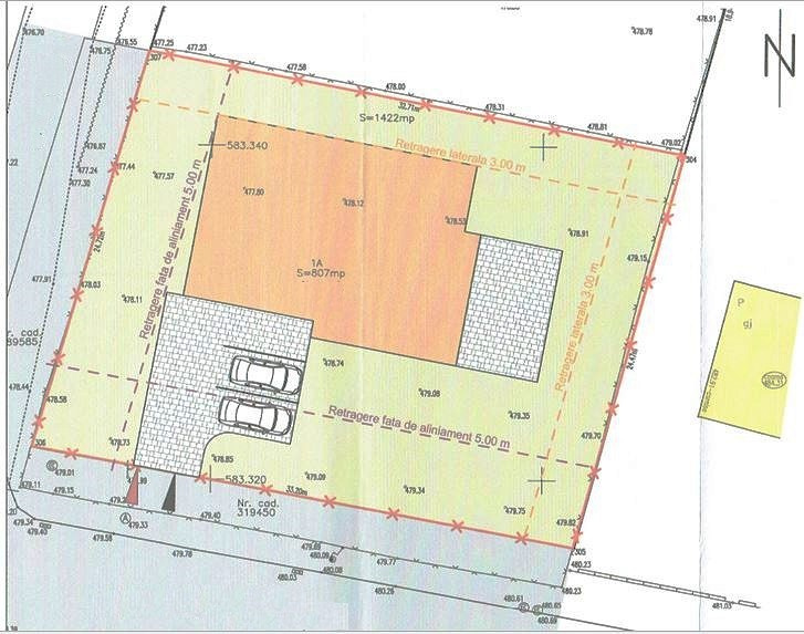
Koncept Imobiliare va ofera spre vanzare un teren cu PUZ aprobat pentru construirea unei locuinte unifamiliale sau duplex, situat in cartierul Buna Ziua, zona strazii Mihai Romanul, o locatie aflata in continua dezvoltare, apreciata pentru accesibilitate si potentialul rezidential. Terenul beneficiaza de acces facil pe drum asfaltat, fiind bine conectat la principalele artere ale orasului si oferind un echilibru intre liniste si proximitatea punctelor de interes. Proprietatea are suprafata de 807 mp si o forma regulata, cu dimensiuni de aproximativ24,5 ml front la strada si 33 m adancime, ceea ce permite o flexibilitate excelenta in proiectare si valorificarea eficienta a spatiului. Terenul are o panta foarte mica, fiind usor de construit si optim pentru dezvoltarea unui proiect rezidential coerent. Conform certificatului de urbanism, regimul de inaltime permite mai multe configuratii: (S)+P+1+M, (S)+P+1+R, D+P+M sau D+P+R, oferind astfel posibilitatea adaptarii proiectului in functie de nevoi si viziune. Utilitatile sunt disponibile in zona, facilitand racordarea viitoarei constructii. Unul dintre principalele avantaje ale acestui teren este forma sa regulata, care permite o organizare eficienta a constructiei si a spatiilor exterioare. De asemenea, amplasarea intr-o zona in plina dezvoltare aduce un potential crescut de valorizare in timp, iar accesul rapid si facil contribuie la un stil de viata confortabil. Frontul generos la strada reprezinta un alt atu important, oferind atat vizibilitate, cat si multiple optiuni de amplasare a constructiei. Acest teren este recomandat in special pentru constructia unei locuinte proprii, intr-un cadru aerisit si modern, dar reprezinta totodata si o oportunitate buna de investitie, fiind potrivit pentru dezvoltarea unui duplex. Pentru informatii suplimentare, programarea unei vizionari sau pentru a afla oferta noastra completa va stam la dispozitie telefonic, prin e-mail sau la sediul agentiei noastre, pe str. Aviator Badescu, nr. 19, Cluj-Napoca.

Detalii anunt

  • strada
    -
  • carte funciara
    nu
  • curent
    nu
  • certificat urbanism
    nu
  • apa
    nu
  • canalizare
    nu
  • gaz
    nu