217 vizualizari
Imprima
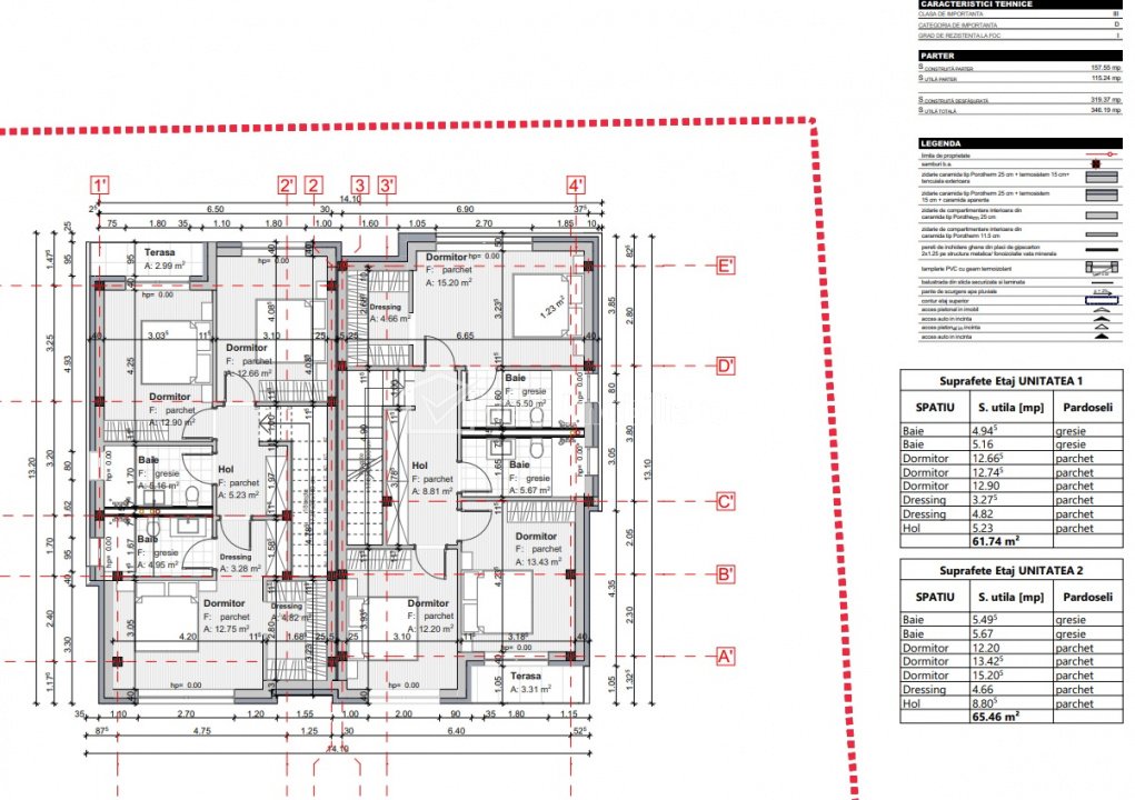
Unitate duplex 185mp cu garaj 2 masini, zona TCI Borhanci
Va propun spre vanzare o unitate de duplex situata in cartier Borhanci zona TCI
Imobilul este in curs de finalizare si se compune:
-demisol: garaj pentru 2 masini plus spatiu de depozitare (65mp)
- parter: living cu bucatarie deschisa si iesire pe terasa, birou, baie cu dus si scari spre etaj (59mp)
- etaj : 3 dormitoare din care unul matrimonial cu baie si dressing, baie cu cada pentru celelalte 2 dormitoare (62mp)
Locatie foarte buna, imobil construit cu materiale de calitate si atentie la detalii
Incalzire in pardosea prin pompe de caldura, stadiul semifinisat
Imobilul este in curs de finalizare si se compune:
-demisol: garaj pentru 2 masini plus spatiu de depozitare (65mp)
- parter: living cu bucatarie deschisa si iesire pe terasa, birou, baie cu dus si scari spre etaj (59mp)
- etaj : 3 dormitoare din care unul matrimonial cu baie si dressing, baie cu cada pentru celelalte 2 dormitoare (62mp)
Locatie foarte buna, imobil construit cu materiale de calitate si atentie la detalii
Incalzire in pardosea prin pompe de caldura, stadiul semifinisat
https://www.weltimobiliare.ro/vanzare-casa-4-camere-cluj-napoca-borhanci-id-75708.html
Detalii anunt
-
Pers. fizica sau agentieAgentie
-
camere4 sau mai multe
-
suprafata185 mp
-
bai3
-
strada-
-
parcarenu
-
gresienu
-
centrala termicanu
-
parchetnu
-
faiantanu
-
termopannu