43 vizualizari
Imprima
Penthouse semifinisat pe doua niveluri, 200mp, zona Calea Floresti
Welt Imobiliare va prezinta spre vanzare un penthouse semifinisat in cartierul Manastur, zona Calea Floresti.
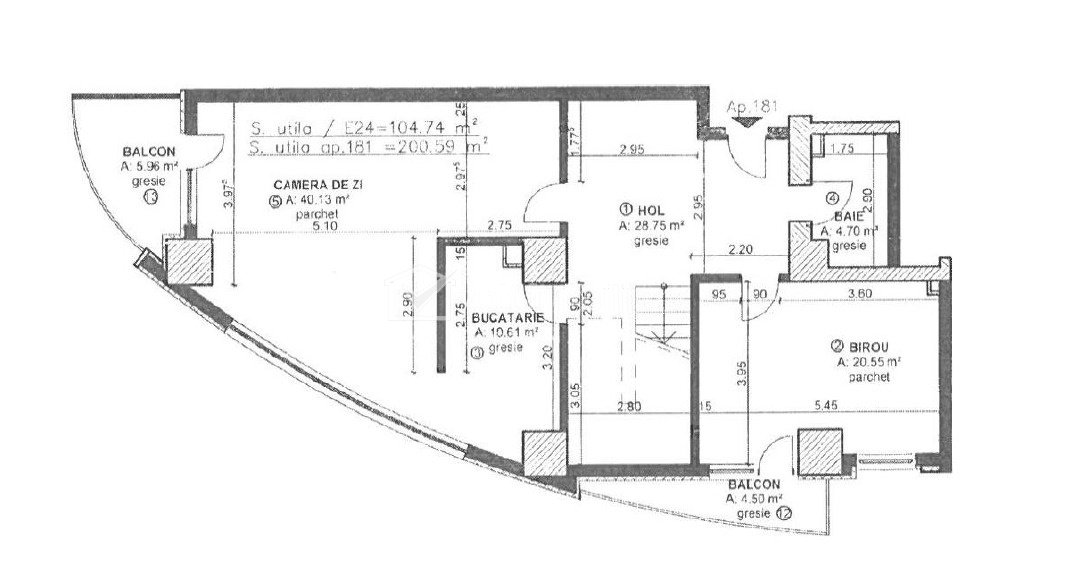
Imobilul este cu scara interioara la etajul 24, respectiv etajul 25, al unui imobil nou, dispus pe 25 etaje, avand o suprafata utila de 201 m² + 4 balcoane de 20m².
Compartimentarea a fost gandita astfel:
* Primul nivel
- 1 living tip open space cu bucatarie si iesire la balcon
- 1 dormitor cu iesire la balcon
- 1 baie
- hol
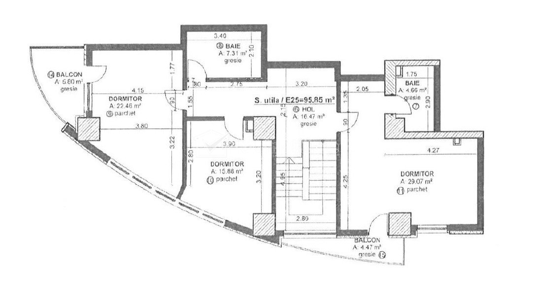
* Al doilea nivel
- 3 dormitoare cu iesire la balcon
- 2 bai
- 2 balcone
- hol
Apartamentul este bineintretinut cu supraveghere video, lift si se vinde la stadiul semifinisat.
Exista posibilitatea achizitionarii unui loc de parcare subteran.
Contactati-ne pentru informatii suplimentare sau pentru a stabili o vizionare!
Imobilul este cu scara interioara la etajul 24, respectiv etajul 25, al unui imobil nou, dispus pe 25 etaje, avand o suprafata utila de 201 m² + 4 balcoane de 20m².
Compartimentarea a fost gandita astfel:
* Primul nivel
- 1 living tip open space cu bucatarie si iesire la balcon
- 1 dormitor cu iesire la balcon
- 1 baie
- hol
* Al doilea nivel
- 3 dormitoare cu iesire la balcon
- 2 bai
- 2 balcone
- hol
Apartamentul este bineintretinut cu supraveghere video, lift si se vinde la stadiul semifinisat.
Exista posibilitatea achizitionarii unui loc de parcare subteran.
Contactati-ne pentru informatii suplimentare sau pentru a stabili o vizionare!
https://www.weltimobiliare.ro/vanzare-apartament-5-camere-cluj-napoca-manastur-id-78795.html
Detalii anunt
-
Pers. fizica sau agentieAgentie
-
suprafata200.59 mp
-
compartimentareSemidecomandat
-
bai3
-
strada-
-
parcarenu
-
gresienu
-
centrala termicanu
-
parchetnu
-
faiantanu
-
termopannu