87 vizualizari
Imprima
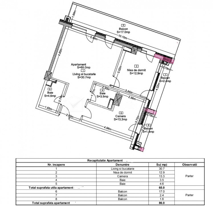
Apartament 3 camere 65 mp, 2 bai, terasa 17mp, bloc WINGS
Oferim spre vânzare un apartament modern situat în ansamblul rezidențial Wings, cartier Zorilor, Cluj-Napoca.
Apartament 3 camere 65mp utili, 1 dormitor spatios si unul mai mic sau birou; 2 bai, living cu bucatarie open space cu iesire pe terasa.
Terasa 17mp orientata Est si 2 balcoane, cate unul pt fiecare dormitor.
SEMIFINISAT
Cu centrala termica pe gaz, incalzire in pardoseala, geamuri tripan, instalatii pe pozitii
Intabulat cu carte funciară – disponibil imediat, se poate accesa credit ipotecar
Posibilitate achiziție loc de parcare: 13.000 EUR
Apartament 3 camere 65mp utili, 1 dormitor spatios si unul mai mic sau birou; 2 bai, living cu bucatarie open space cu iesire pe terasa.
Terasa 17mp orientata Est si 2 balcoane, cate unul pt fiecare dormitor.
SEMIFINISAT
Cu centrala termica pe gaz, incalzire in pardoseala, geamuri tripan, instalatii pe pozitii
Intabulat cu carte funciară – disponibil imediat, se poate accesa credit ipotecar
Posibilitate achiziție loc de parcare: 13.000 EUR
https://www.weltimobiliare.ro/vanzare-apartament-3-camere-cluj-napoca-zorilor-id-78610.html
Detalii anunt
-
Pers. fizica sau agentieAgentie
-
camere3
-
suprafata65 mp
-
compartimentareSemidecomandat
-
etajParter
-
bai2
-
balcoane2
-
strada-
-
parcarenu
-
gresienu
-
centrala termicanu
-
parchetnu
-
faiantanu
-
termopannu