126 vizualizari
Imprima
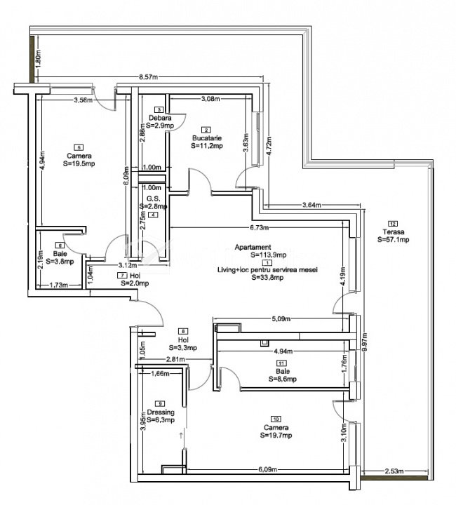
Penthouse 3 cam 114mp, 3 bai, terasa 57mp, Zorilor - Lidl Frunzisului
Apartament tip penthouse in bloc nou zona Lidl Frunzisului cu panorama superba, orientare Sud-Est
Suprafata utila 114mp si terasa panoramica de 57mp cu acces din fiecare incapere.
Compus din living spatios cu loc de luat masa, bucatarie separata cu debara, baie de serviciu pe hol
Dormitor matrimonial 35mp! cu dressing si baie proprie, acces pe terasa
Al 2-lea dormitor cu baie proprie, acces pe terasa
Apartamentul se vinde semifinisat cu centrala proprie pe gaz, incalzire in pardoseala, instalatii pe pozitie, pereti gletuiti.
Loc parcare exterioara la pretul de 15.000 eur
Daca se achizitioneaza pe firma platitoare de TVA se poate deduce 200 eur/mp din pretul de lista
Suprafata utila 114mp si terasa panoramica de 57mp cu acces din fiecare incapere.
Compus din living spatios cu loc de luat masa, bucatarie separata cu debara, baie de serviciu pe hol
Dormitor matrimonial 35mp! cu dressing si baie proprie, acces pe terasa
Al 2-lea dormitor cu baie proprie, acces pe terasa
Apartamentul se vinde semifinisat cu centrala proprie pe gaz, incalzire in pardoseala, instalatii pe pozitie, pereti gletuiti.
Loc parcare exterioara la pretul de 15.000 eur
Daca se achizitioneaza pe firma platitoare de TVA se poate deduce 200 eur/mp din pretul de lista
https://www.weltimobiliare.ro/vanzare-apartament-3-camere-cluj-napoca-zorilor-id-77784.html
Detalii anunt
-
Pers. fizica sau agentieAgentie
-
camere3
-
suprafata114 mp
-
compartimentareDecomandat
-
bai3
-
strada-
-
centrala termicada
-
parcarenu
-
gresienu
-
parchetnu
-
faiantanu
-
termopannu