11 vizualizari
Imprima
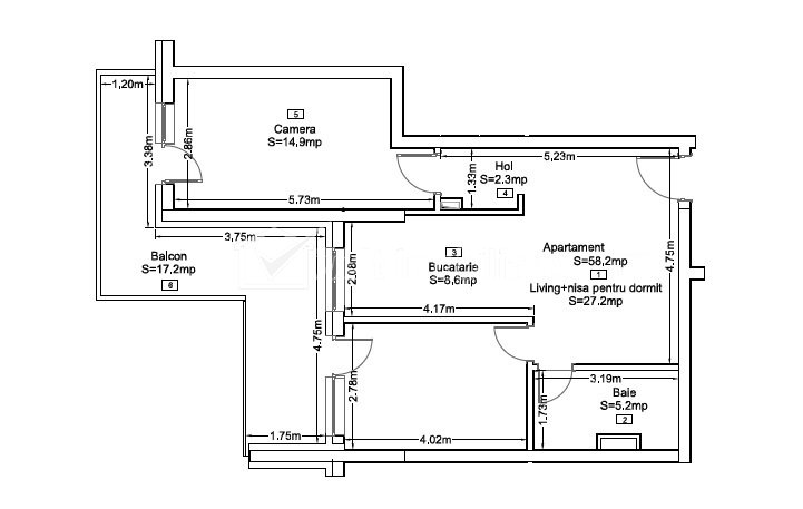
Apartament FINISAT 58mp 3 cam, terasa 17mp, Lidl Frunzisului
Apartament 3 camere, situat in noul complex rezidential de langa Lidl Frunzisului
Suprafata utila 58mp, compus din living, bucatarie inchisa, 2 camere, baie cu cada, terasa spatioasa de 17mp.
Apartamentul se vinde FINISAT
La pretul afisat se adauga TVA : 179.800 euro + TVA = 217.558 euro
Parcare exterioara la pretul de 12.000 eur + TVA
Suprafata utila 58mp, compus din living, bucatarie inchisa, 2 camere, baie cu cada, terasa spatioasa de 17mp.
Apartamentul se vinde FINISAT
La pretul afisat se adauga TVA : 179.800 euro + TVA = 217.558 euro
Parcare exterioara la pretul de 12.000 eur + TVA
https://www.weltimobiliare.ro/vanzare-apartament-3-camere-cluj-napoca-zorilor-id-77768.html
Detalii anunt
-
Pers. fizica sau agentieAgentie
-
camere3
-
suprafata58 mp
-
compartimentareDecomandat
-
bai1
-
strada-
-
centrala termicada
-
parchetda
-
parcarenu
-
gresienu
-
faiantanu
-
termopannu