img 01.10.2025 12:41

Apartament semifinisat in ansamblul rezidential Azoria

Imagine
Imagine
Imagine
Imagine
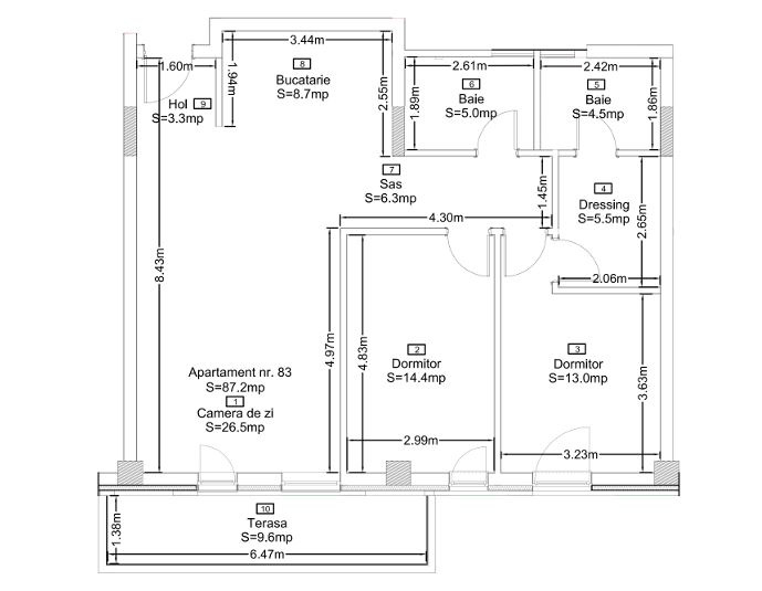
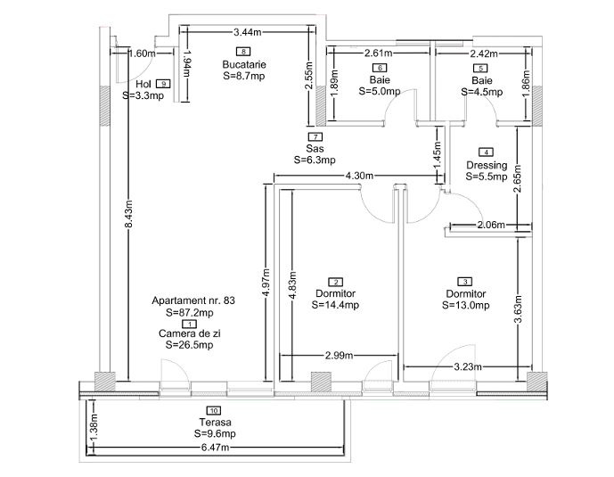
Koncept Imobiliare va propune spre vanzare un apartament modern situat pe Strada Frunzisului, in ansamblul rezidential Azoria. Proprietatea este amplasata la etajul 10 al unui imobil dispus pe 10 niveluri, beneficiind de o pozitionare excelenta in zona de sud a orasului si acces rapid catre principalele artere. Locatia ofera un cadru linistit, dar totodata bine conectat la punctele de interes ale Clujului. Apartamentul are o suprafata generoasa de 87,2 mp utili si este compartimentat in 3 camere, bucatarie, 2 bai si un balcon de 9,6 mp. Dormitorul matrimonial este prevazut cu dressing si baie proprie, ceea ce adauga un plus de confort si intimitate. Exista posibilitatea achizitionarii unuia sau a doua locuri de parcare subterane, in functie de necesitati. Imobilul este oferit la stadiul semifinisat, oferind libertatea de personalizare dupa propriul stil. Dispune de incalzire prin pardoseala si orientare sud-est, ceea ce asigura luminozitate naturala pe tot parcursul zilei si o panorama spectaculoasa asupra orasului. Datorita suprafetei generoase si compartimentarii eficiente, apartamentul este o alegere excelenta pentru o locuinta de familie, o resedinta de protocol sau pentru inchiriere pe termen lung. Actele au fost verificate si validate de agentie. Pentru informatii complete, programarea unei vizionari sau pentru a afla oferta noastra completa va stam la dispozitie telefonic, prin e-mail sau la sediul agentiei noastre, pe str. Aviator Badescu, nr. 19, Cluj-Napoca.

Detalii anunt

  • Pers. fizica sau agentie
    Agentie
  • camere
    3
  • suprafata
    87.2 mp
  • compartimentare
    Semidecomandat
  • bai
    2
  • balcoane
    1
  • strada
    -
  • centrala termica
    da
  • termopan
    da
  • parcare
    nu
  • gresie
    nu
  • parchet
    nu
  • faianta
    nu