img 19.01.2026 14:02

Apartament cu 3 camere, bloc nou, Apahida.

Imagine
Imagine
Imagine
Imagine
Imagine
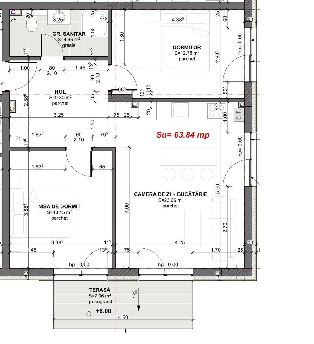
Apartament cu 3 camere de vânzare în Apahida, zona străzii Libertății. Suprafața utilă este de 63,84 mp. Compartimentarea este eficientă și cuprinde hol, living cu bucătărie open-space, 2 dormitoare, o baie și balcon de 7,36 mp. Apartamentul se vinde semifinisat. Este dotat cu centrală termică proprie, încălzire în pardoseală, geamuri termopan și ușă metalică la intrare. Baia este finisată cu gresie și faianță. Blocul este nou, recent finalizat. Locația este liniștită, aproape de oraș și de mijloacele de transport în comun. Este o alegere excelentă pentru locuință proprie sau investiție. ???? Contactează-ne pentru mai multe detalii sau pentru a programa o vizionare

Detalii anunt

  • Pers. fizica sau agentie
    Agentie
  • camere
    3
  • suprafata
    64 mp
  • an constructie
    Bloc nou
  • compartimentare
    Semidecomandat
  • strada
    apahida
  • parcare
    nu
  • gresie
    nu
  • centrala termica
    nu
  • parchet
    nu
  • faianta
    nu
  • termopan
    nu