68 vizualizari
Imprima
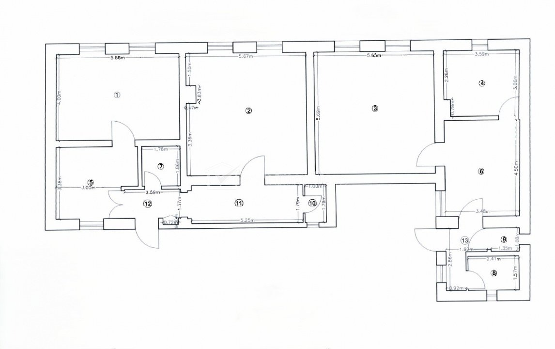
Spatiu birouri, Bulevardul 21 decembrie 1989, parcare, 152mp, 5 camere
Welt Imobiliare va prezinta spre inchiriere un spatiu pentru birouri, intr-o casa alipita cu acces stradal, situata in Centru, zona Regionala CFR.
Proprietatea este compusa din 5 incaperi, 2 bai, 1 bucatarie, 2 camari, 2 antreuri si un hol, cu suprafata utila de aproximativ 152mp.
Imobilul se afla in curs de renovare exterior-interior si poate fi amenajat dupa cerintele clientului.
Contactati-ne pentru informatii suplimentare sau pentru a stabili o vizionare!
Proprietatea este compusa din 5 incaperi, 2 bai, 1 bucatarie, 2 camari, 2 antreuri si un hol, cu suprafata utila de aproximativ 152mp.
Imobilul se afla in curs de renovare exterior-interior si poate fi amenajat dupa cerintele clientului.
Contactati-ne pentru informatii suplimentare sau pentru a stabili o vizionare!
https://www.weltimobiliare.ro/inchiriere-spatiu-comercial-cluj-napoca-centru-id-78882.html
Detalii anunt
-
Pers. fizica sau agentieAgentie
-
suprafata152.33 mp