img 30.12.2025 12:42

Spatiu industrial cu birouri pe Bulevardul Muncii

Imagine
Imagine
Imagine
Imagine
Imagine
Imagine
Imagine
Imagine
Imagine
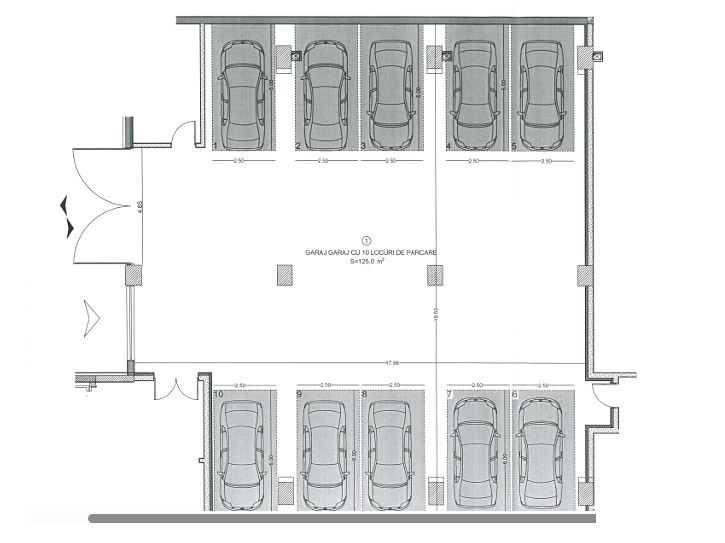
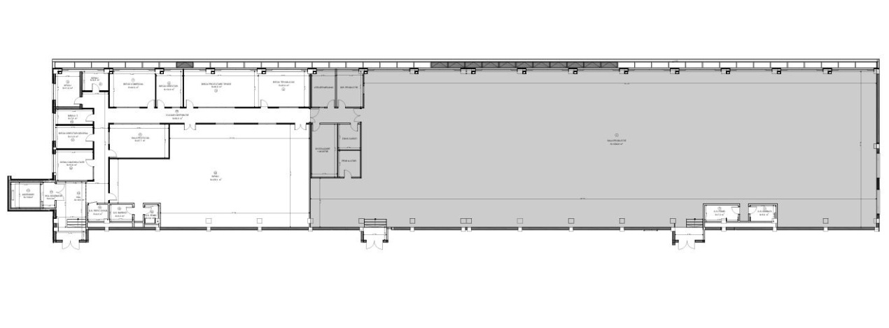
Koncept Imobiliare va ofera spre vanzare un spatiu industrial situat pe Bulevardul Muncii in zona Universitatii Tehnice, o zona foarte bine conectata la principalele artere ale orasului, cu acces rapid catre centura si autostrada, precum si cu legaturi facile catre transportul public. Proprietatea este amplasata intr-o cladire ce imbina functiunile de birouri si spatii tehnice, fiind potrivita pentru activitati industriale, productie, logistice si administrative. Spatiul are o suprafata totala de 3.420 mp, dispusa pe doua niveluri, parter si etaj. La parter, inaltimea utila este de 6 metri, oferind conditii excelente pentru productie, depozitare sau activitati tehnice, iar accesul pentru marfa se realizeaza prin poarta industriala. Etajul beneficiaza de o inaltime utila de 4 metri si este deservit de un lift industrial cu capacitate de pana la 3.000 kg, sarcina de incarcare fiind de circa 1.500 kg/mp, ceea ce permite utilizarea pentru echipamente grele sau stocare intensiva. Spatiile se prezinta in conditii bune de utilizare, cu structura solida si capacitate portanta ridicata. Proprietatea dispune curent trifazat instalata de mare putere, apa, canalizare, gaz si fibra optica, toate utilitatile fiind pe pozitie. Spatiul este liber de sarcini, cu documentatia completa si disponibil imediat. Configuratia interioara este flexibila, permitand compartimentari in functie de necesitatile viitorului proprietar. La etaj exista deja o zona amenajata pentru birouri, ceea ce face proprietatea potrivita pentru activitati mixte, precum productie usoara, logistica, depozitare, activitati tehnice, IT, R&D, centre de training sau showroom industrial. Spatiul este dotat cu grupuri sanitare proprii, sistem de alarma, supraveghere video, control acces si interfon, asigurand un nivel ridicat de siguranta. La parter sunt incluse 10 locuri de parcare interioare. Prin amplasarea strategica pe Bulevardul Muncii, suprafata generoasa, accesul industrial, capacitatea portanta ridicata, functionalitatea mixta industrial-birouri si pretul competitiv raportat la piata actuala, aceasta proprietate reprezinta o oportunitate solida pentru investitie sau pentru companii care isi doresc un sediu propriu adaptabil unei game largi de activitati. Pentru informatii suplimentare, programarea unei vizionari sau pentru a afla oferta noastra completa va stam la dispozitie telefonic, prin e-mail sau la sediul agentiei noastre, pe str. Aviator Badescu, nr. 19, Cluj-Napoca.

Detalii anunt

  • Pers. fizica sau agentie
    Agentie