69 vizualizari
Imprima
Casa individuala ,4 camere, curte, priveliste, Suceagu
Va prezentăm o proprietate noua situata într-o zonă superbă, o casă ideală pentru familia ta:
132 mp utili + terasa de 16 mp, pe un teren generos de 2000 mp
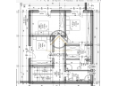
Casa este dispusa P+pod astfel:
- living spatios cu bucatarie,
- 2 dormitoare
- 1 dormitor matrimonial cu dressing si baie proprie,
- baie,
- camera tehnica cu acces in pod,
- dressing,
-hol,
-spatiu depozitare,
-terasa.
La acest pret casa se vinde in stadiul ,,la rosu ", construita exclusiv din materiale de calitate, existand si posibilitatea de finisare,la cerere.
Casa e amplasata pe deal, beneficiind de o priveliste frumoasa.
Utilitati: de curent ,apa ,canalizare
Pentru mai multe informatii va rugam sa ne contactati.
132 mp utili + terasa de 16 mp, pe un teren generos de 2000 mp
Casa este dispusa P+pod astfel:
- living spatios cu bucatarie,
- 2 dormitoare
- 1 dormitor matrimonial cu dressing si baie proprie,
- baie,
- camera tehnica cu acces in pod,
- dressing,
-hol,
-spatiu depozitare,
-terasa.
La acest pret casa se vinde in stadiul ,,la rosu ", construita exclusiv din materiale de calitate, existand si posibilitatea de finisare,la cerere.
Casa e amplasata pe deal, beneficiind de o priveliste frumoasa.
Utilitati: de curent ,apa ,canalizare
Pentru mai multe informatii va rugam sa ne contactati.
https://www.weltimobiliare.ro/vanzare-casa-4-camere-suceagu-id-76996.html
Detalii anunt
-
Pers. fizica sau agentieAgentie
-
camere4 sau mai multe
-
suprafata133 mp
-
bai1
-
strada-
-
parcarenu
-
gresienu
-
centrala termicanu
-
parchetnu
-
faiantanu
-
termopannu