26 vizualizari
Imprima
REZERVAT! Apartament pe str. Vicențiu Babeș
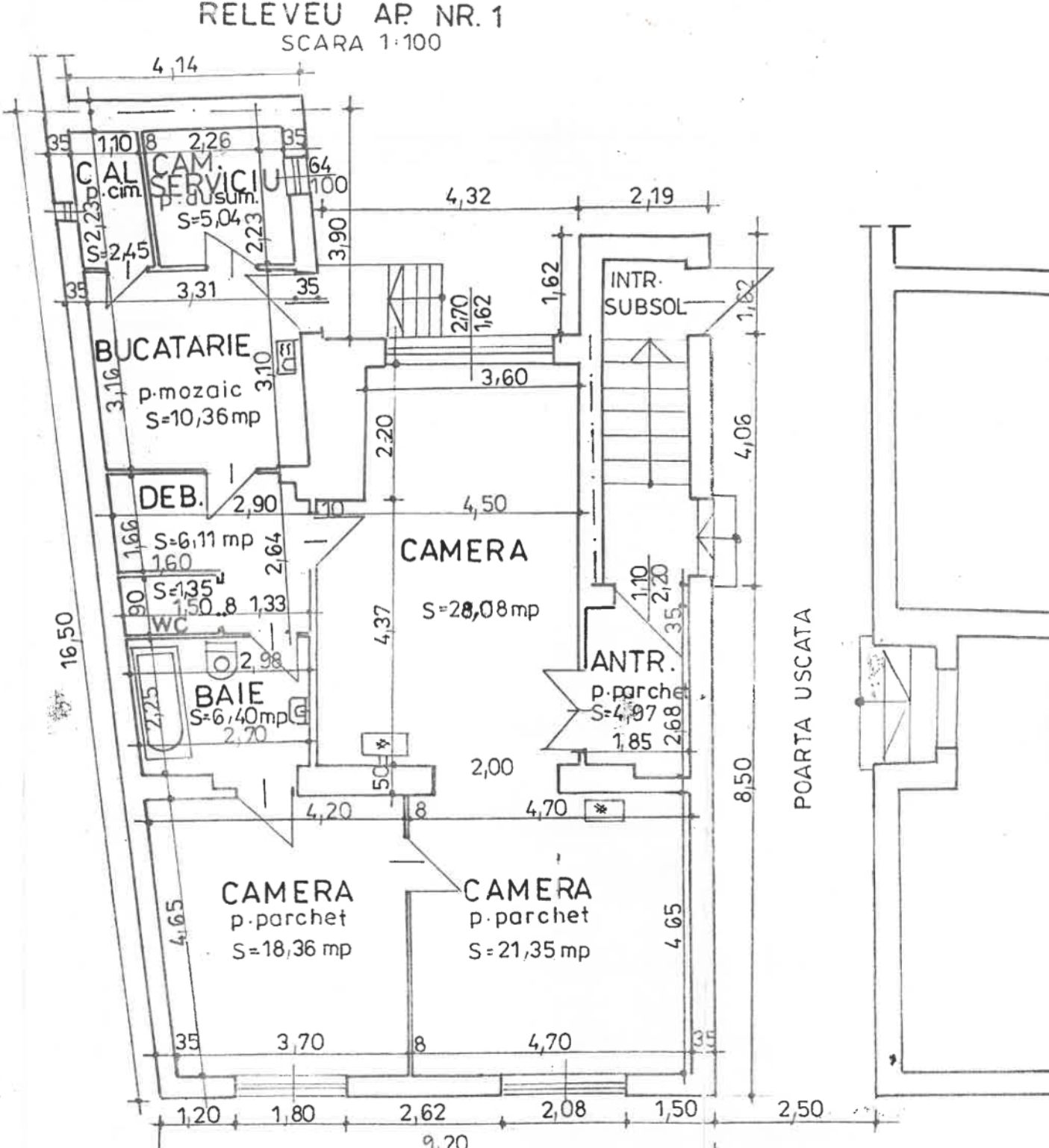
Vă propunem spre achiziție un apartament spațios și versatil, situat pe strada Vicențiu Babeș, perfect pentru o familie sau pentru profesioniști care își doresc un spațiu de lucru reprezentativ.
Apartamentul dispune de 3 camere generoase, cu parchet masiv și o compartimentare practică, ce permite atât utilizarea ca locuință confortabilă, cât și ca spațiu pentru birouri sau cabinete.
Caracteristici principale:
Suprafață generoasă, compartimentare practică
3 camere luminoase, la parter înalt
2 căi de acces directe în apartament
Centrală proprie pe gaz – eficiență și confort termic
Boxă curată la subsol pentru depozitare
Acces auto în curtea interioară – avantaj rar în zona centrală
Avantaje și utilizări posibile:
Locuință elegantă și spațioasă, într-o zonă ultracentrală și liniștită
Birouri sau cabinete private, datorită accesului facil și poziționării centrale
Investiție sigură într-una dintre cele mai căutate zone ale Aradului
???? Pentru detalii și vizionări:
Sebastian Nica – 0722 252 639
Consultant Imobiliar – Agenția ACASĂ Arad
Cod proprietate: CP2700839
Apartamentul dispune de 3 camere generoase, cu parchet masiv și o compartimentare practică, ce permite atât utilizarea ca locuință confortabilă, cât și ca spațiu pentru birouri sau cabinete.
Caracteristici principale:
Suprafață generoasă, compartimentare practică
3 camere luminoase, la parter înalt
2 căi de acces directe în apartament
Centrală proprie pe gaz – eficiență și confort termic
Boxă curată la subsol pentru depozitare
Acces auto în curtea interioară – avantaj rar în zona centrală
Avantaje și utilizări posibile:
Locuință elegantă și spațioasă, într-o zonă ultracentrală și liniștită
Birouri sau cabinete private, datorită accesului facil și poziționării centrale
Investiție sigură într-una dintre cele mai căutate zone ale Aradului
???? Pentru detalii și vizionări:
Sebastian Nica – 0722 252 639
Consultant Imobiliar – Agenția ACASĂ Arad
Cod proprietate: CP2700839
https://www.acasa-arad.ro/apartament-3-camere-de-vanzare-ultracentral-arad-cp2700839/
Detalii anunt
-
Pers. fizica sau agentieAgentie
-
camere3
-
suprafata105 mp
-
grad de finisareFinisat clasic
-
etajParter
-
bai2
-
strada-
-
centrala termicada
-
parchetda
-
parcarenu
-
gresienu
-
faiantanu
-
termopannu