10 vizualizari
Imprima
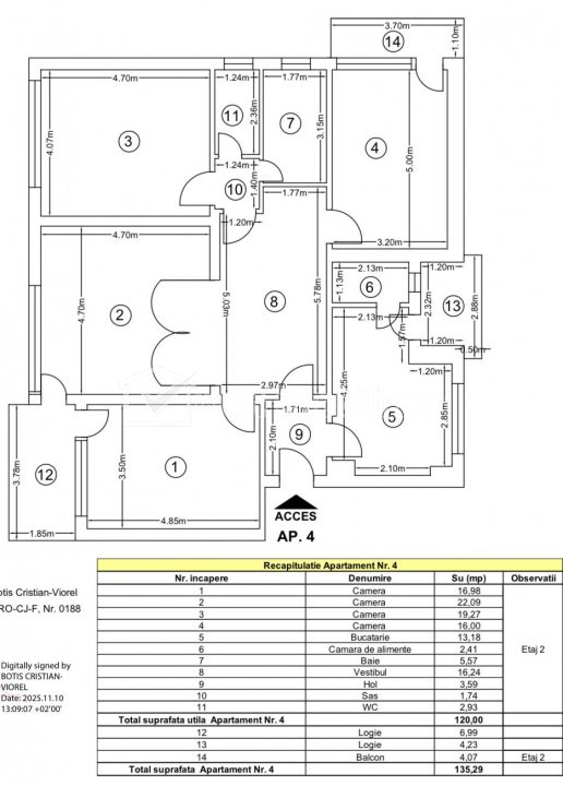
Apartament spatios, 120mp, Andrei Muresanu
Va oferim spre vanzare un apartament cu 4 camere, situat la etajul 2 din 3, intr-o cladire cu doar 6 apartamente, inalimtea acestuia este de 3.20 metri. Apartamentul este decomandat si amplasat intr-o zona apreciata a orasului. Suprafata utila este de 120 mp, la care se adauga trei balcoane cu o suprafata totala de 15 mp.
Pozitionarea excelenta asigura acces rapid, in doar cateva minute, catre statii de transport in comun, farmacii, magazine si alte puncte de interes urban. Apartamentul dispune de centrala termica proprie, oferind confort optim in sezonul rece.
Pentru mai multe informatii sau pentru a programa o vizionare, nu ezitati sa ne contactati.
Pozitionarea excelenta asigura acces rapid, in doar cateva minute, catre statii de transport in comun, farmacii, magazine si alte puncte de interes urban. Apartamentul dispune de centrala termica proprie, oferind confort optim in sezonul rece.
Pentru mai multe informatii sau pentru a programa o vizionare, nu ezitati sa ne contactati.
https://www.weltimobiliare.ro/vanzare-apartament-4-camere-cluj-napoca-andrei-muresanu-id-77794.html
Detalii anunt
-
Pers. fizica sau agentieAgentie
-
camere4 sau mai multe
-
suprafata120 mp
-
compartimentareDecomandat
-
bai2
-
strada-
-
parcareda
-
parchetda
-
faiantada
-
gresienu
-
centrala termicanu
-
termopannu